2 parkings & garages te koop in 9340 Lede

Ontvang dagelijks nieuwe advertenties die aan uw zoekcriteria voldoen

De meest recente aankondigingen van garage te koop staan bovenaan de lijst.

photo

Parking & garage te koop Lede

11.000 €

0 slp. | 0 m2 | clock 12d

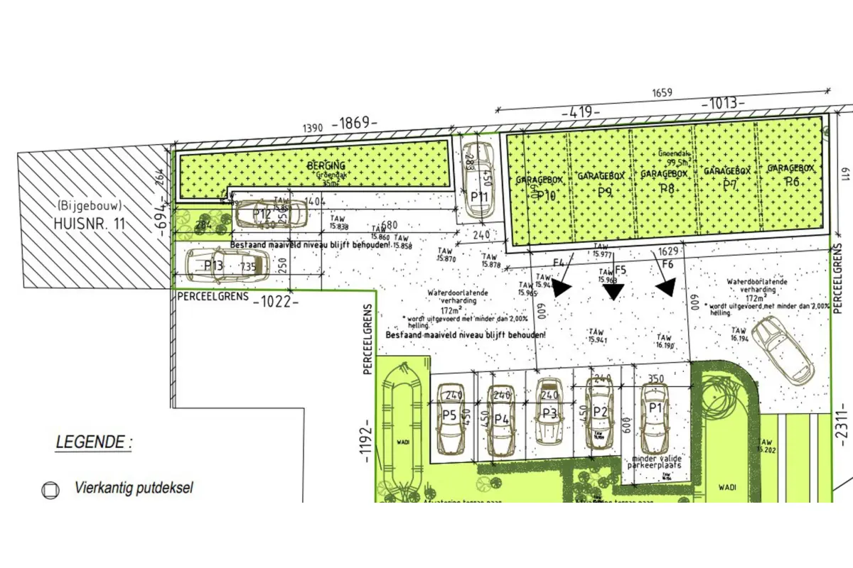
Te koop: bovengrondse parkeerplaatsen aan Residentie Magnolia, naast het station in LedeOp zoek naar een praktische en vlot bereikbare parkeeroplossing? Deze bovengrondse parkeerplaatsen,… …klik hier voor alle info over deze aankondiging

photo

Parking & garage te koop Lede 9340

30.000 €

0 slp. | 0 m2 | clock 12d

Te koop: ondergrondse parkeerplaatsen aan Residentie Magnolia, naast het station in LedeOp zoek naar een praktische en vlot bereikbare parkeeroplossing? Deze ondergrondse parkeerplaatsen,… …klik hier voor alle info over deze aankondiging

Ontvang dagelijks nieuwe advertenties die aan uw zoekcriteria voldoen

Past uw zoekcriteria aan

Heeft u de parking & garage te koop dat u zocht in Lede niet gevonden binnen de 2 zoekertjes?  U kunt altijd zoeken in de andere gemeentes in de buurt van Lede.

Parkings & garages te koop in de gemeenten rond Lede

Types garage te koop in 9340 Lede

Kopen of huren een garage? Denk soms de andere kant op

Ontvang dagelijks nieuwe advertenties die aan uw zoekcriteria voldoen